4.1、聚脲喷涂防腐工程应用


四、新材料新技术的应用


4.1、聚脲(SPUA)喷涂防腐工程应用

 

聚脲弹性体(SPUA)喷涂技术是美国近二十年来,继高固体份涂料、水性涂料、辐射固化涂料、粉末涂料等低(无)污染涂装技术后,为适应环保需求研制开发的一种新型无溶剂、无污染绿色施工技术。施工工艺属快速反应喷涂体系,原料体系不含溶剂、固化速度快,在立面、曲面上喷涂十几毫米厚的涂层而不流挂。该技术进入中国后发展迅猛,已在中国国家大剧院人工湖、北京奥运体育馆、京津、京沪高铁聚脲防水、华能电厂金属罐聚脲防腐等国家重点工程得到应用,聚脲弹性体(SPUA)喷涂技术防水防腐效果显著。

1、优点及特性

1.1、反应活性高 、固化速度快 、垂直面 、顶面及任意曲面可连续喷涂不流挂。聚脲弹性体不需要催化剂,5~10秒钟凝胶,30分钟达步行强度,一次施工厚度无限制,施工周期短、效率高。

1.2 、100%固含量 、无有机物挥发 、无毒,属无污染的绿色喷涂技术。

1.3 、耐低温高温稳定性好。聚脲弹性体涂层,可在-45℃~120℃下长期使用并能承受160 ℃短时热冲击。

1.4、弹性体和刚性体涂层有优异的物理性能。如抗拉强度 、撕裂强度 、冲击强度 、抗阴极剥离、绝缘强度 、延伸率 、耐磨性等。优异的低温韧性。调节配方,硬度可从软橡皮(邵


A30)到硬弹性体(邵D75)之间变化。

1.5、优异的装饰 、防腐 、防水 、防湿滑功能。可耐大部分腐蚀介质酸(中等强度以下) 、碱 、盐、海水等的长期浸泡,是优异的重防腐材料。

1.6、使用成套设备进行喷涂,可现场施工 、快速固化 、生产效率高。专用设备每班(8小时)最高可喷涂厚1mm的涂层2000多平方米。涂层表面光滑、连续无接缝。调节工艺参数,亦可得到橘皮状表面。

1.7、可根据使用要求,加入各种颜料 、填料 、制成不同颜色和功能的涂层。

1.8、适合工期紧张、环保要求高、防火要求高(市中心政治敏感地区)等特种需求的防腐防水项目。

2、应用领域

2.1、防腐防水材料:电厂出盐水箱防腐、金属罐防腐、污水池防腐、彩钢瓦屋面防水、建筑物的屋面高级防水、屋面种植草坪防树根穿透、地下室外墙、地下室底板、工业厂房、冷库隔汽层、水库、桥梁、隧道以及发电厂冷却塔、水族馆、游泳池内衬装饰等领域。露天防水必须涂刷聚脲面涂。

2.2、工业地坪、运动场地、主题公园、影视道具材料:如车间地面、制药厂GMP车间、工厂车间树脂墙面、天花板、粮食仓库、篮球场、网球场、儿童游乐园等。聚脲自身环保性能使其对于环境要求较高的场所具有了新的选择。对要求防眩目、消光等场合,可利用其极快的反应速度,通过喷涂直接获得表面具有均匀颗粒的“麻面”。


2.3、防腐保温材料:专用于大型储罐内外壁、架空管道或埋地管道聚氨酯泡沫层表面的保护。 

2.4.、耐磨衬里材料: 专为矿山设备衬里设计,可广泛用于煤矿流槽、水泥砂浆处理设备;振动筛、浮选槽、洗矿滚筒、螺旋分离器、研磨设备、水力分级器等。

2.5、管道防腐材料:用于架空管及直埋管、市政污水管、石油管道、煤气管道以及各类钢制化工储罐。

             

                                                                                                                        喷涂机  微信图片_20200628162832.png

                       喷枪

微信图片_20200628162817.png

 






 浓密槽 内聚脲(SPUA)防腐喷涂施工



1589882488120760.png


1589882497117283.png

 

1589882504664152.png

                 

                       

墙壁、地沟 聚脲(SPUA)防腐喷涂施工


1589882863587814.png 

1589882894370202.png



4.2创新技术“高温、高负压(-0.1MPa)、强腐蚀介质设备衬里防腐新材料的开发与应用”

目前国内湿法冶炼电解铜生产企业中常用分离器对后电解液(脱酮液)进行→高温(95℃)→负高压(-0.1MPa)→蒸发→浓缩→结晶的工艺进行脱酮处理,H+、Cu+2、SO4-2、CL-1等介质在高温下激增了腐蚀性,使得分离器对衬里防腐材料选择受到极大的限制。分离器设备有两种,一种是钢构釜+内衬4㎜钛板(或纯钛釜)分离器,另一种是塘瓷釜分离器。在行业里流传着一句俗话:“钛釜太贵,塘瓷釜又容易碎”,高性价比的现实一直困扰着企业的技术经济发展。能不能在传统廉价耐酸瓷砖材料中开发研制物美价廉,质量可靠的“特大弯曲异型耐酸瓷块”,再给合创新施工技术实现多年来的梦想呢?广西坚密特防腐工程有限公司科研工作者经过二十多年的深耕,经历无数次的失败与攻关,终于在高温、负高压、强腐蚀介质分离器设备衬里防腐施工中,国内首次在分离器上封头应用“物化固定法”砌筑“特大弯曲异型耐酸瓷块”的创新材料与施工技术,成功解决了抗高温、抗负高压、抗强腐蚀介质分离器衬里防腐新材料与施工技术难题,同时降低设备成本,是制备钛合金釡费用的45%,经济效益显著。分离器经广西区内电解铜生产企业试产一年后停产检查,分离器衬里材料质量完好率100%,迄今该设备仍在正常使用。


高温(95±2℃)、高负压(-0.1MPa)、强腐蚀介质

分离器内衬FRP+特大弯曲异型耐酸瓷块图

1676452253111185.jpg       




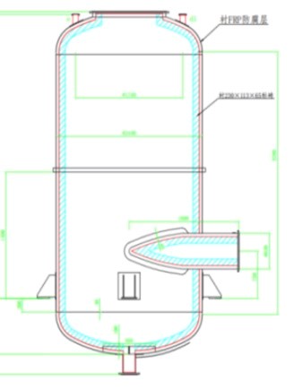
高温( 230℃)、高压(3.8MPa)、强腐蚀介质闪蒸釜技术改造现场

内衬FRP+耐酸砖防腐工程  规格:Φ3800×16300㎜ 闪蒸釜技术改造施工现场

1676452340982458.jpg